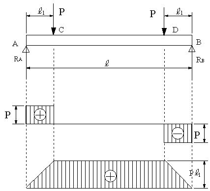
問題119
図の純粋曲げの場合、せん断力図、曲げモーメント図、たわみ曲線の式と、最大たわみを求める。
【解】
     

*CD間では、モーメントが一定のため、梁は円弧状に変形。最大たわみは梁の中央点。ρはCDの曲率半径