材料の強度と破壊>靱帯の頸骨側固定強度試験
靱帯の頸骨側固定強度試験のための固定治具
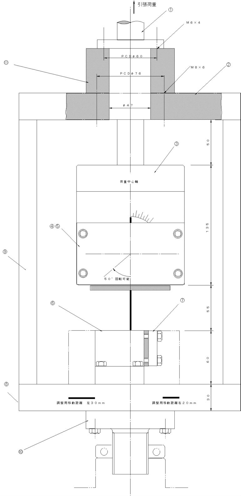
| 人体も医学的な知識のほかに、構造物や機械と同じように、どのような部分にどのような力が働くかなどを解析し、加療を行うことが必要です。このように医学と工学の両面から研究する分野を「バイオメカニックス」と言う。 スポーツなどで膝の靱帯を切断した場合に、他の部分の靱帯をもとあった位置に埋め込む手術を行う。従来から靱帯を固定する方法が行われているが、より手術が容易であり、より確実に、より強度のある取り付け方が必要とされている。 本研究では、若豚の靱帯と頸骨を試験材料として人体の取り付け方法による強度を調べるために、引張試験を行った。人体を固定する頸骨と人体は、不定形であり、また、頸骨の軸と人体の軸方向が一致せず、ある角度を有するので、単純な引張試験では不都合が生じるため、これらのことを考慮して、固定治具を設計製作した。この研究は弘前大学医学部整形外科の先生からの依頼によるものである。 |
||||||||||
| 固定治具の概要 | ||||||||||
| 実際に、靱帯,膝頸骨,頸蓋骨の位置関係は図式的に表すと、図のようになる。頸骨の中心と頸蓋骨の中心が水平方向に20mm程度異なること、頸骨の軸と靱帯の軸が43度の角度を有している。本来は鉛直方向においては同一平面内にないが、今回の実験においては、靱帯,膝頸骨,頸蓋骨のそれぞれの軸は同一平面内にあるとして実験を行った。そこで、次の事項を考慮して設計を行った。 | ||||||||||
![]() |
||||||||||
設計の留意点
|
||||||||||
(1)については、スプラインボールねじに取り付けた固定台に、更に試験片取り付け台を置き、この取り付け台を中心として回転できるようにした。(2)については、外枠底部に移動量に応じた長さの平行な溝を切り、ボルトで頸蓋骨取り付け台を任意の位置で固定できる。(3),(4)についてはスプラインボールねじを外枠に固定することで処理した。取り付け治具の組立図を図に示す。 なお、加工・製作は、大学の工作技術センターに依頼した。 |
||||||||||
| 実験は、容量5kNのインストロン引張試験機に製作した固定治具を取り付け、500mm/minの引張速度で引張試験を行った。 |

靱帯試験片取り付け状態
| No. | 部 品 名 | 外形寸法 | 板厚 | 個数 |
| @ | ボールスプライン | φ30 | 1 | |
| A | 上部支持板 | 194×250 | t=30 | 1 |
| B | 上部フェイス支持台 | 90×80×115 | 1 | |
| C | 上部フェイス部 | 74×50 | t=20 | 1 |
| 50×38 | t=20 | 2 | ||
| D | 上部フェイス | 50×74 | t=10 | 1 |
| E | 下部フェイス部 | 194×70 | t=20 | 1 |
| 85×70 | t=20 | 2 | ||
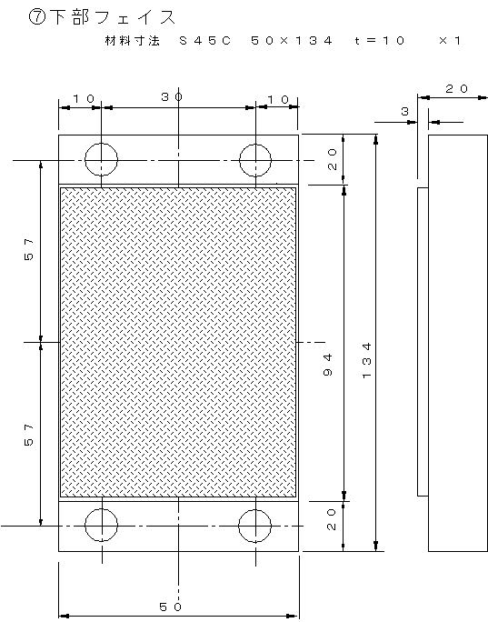
| F | 下部フェイス | 134×70 | t=10 | 1 |
| G | 下部支持板 | 194×250 | t=30 | 1 |
| H | 側板 | 194×270 | t=20 | 2 |
| I | 引張試験機固定治具 | φ100×90 | 1 | |
| J | スプラインフランジアダプター | φ100×80 | 1 |

固定治具組み立て図










材料の強度と破壊>靱帯の頸骨側固定強度試験